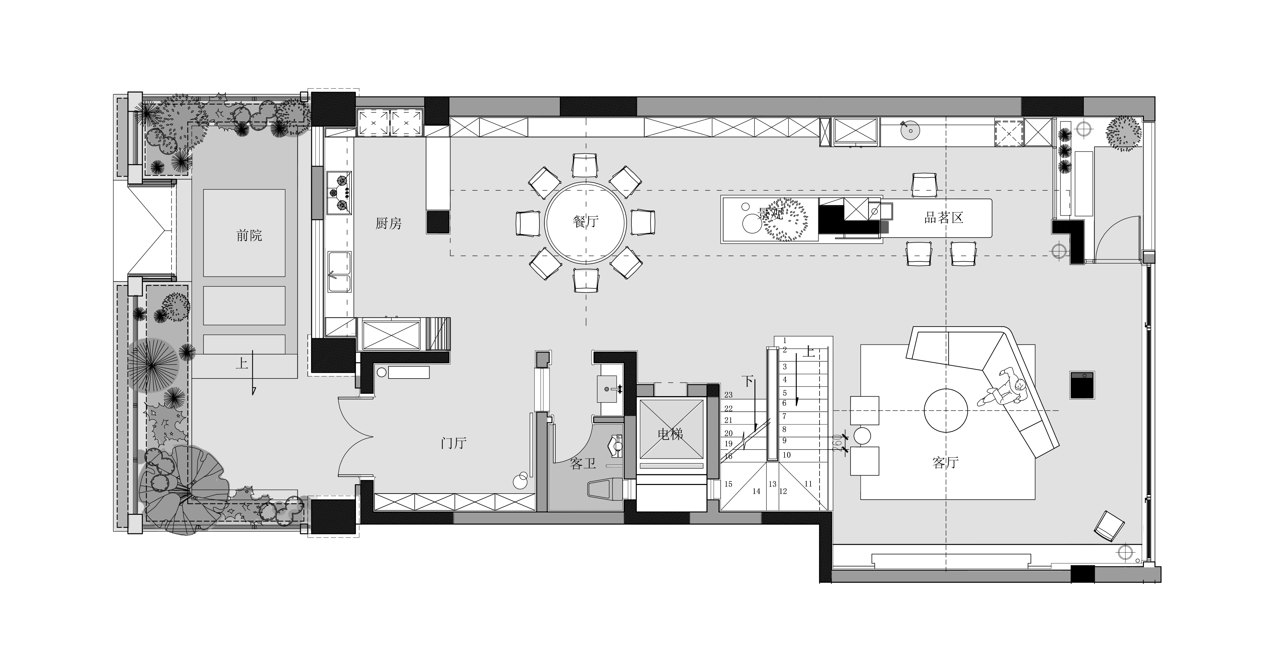
本案是一座浸润着阳光与绿意的现代私宅,温馨而富有诗意,融入第四代住宅理念,将人与自然、生态与空间紧密相连。
原木色的肌理交织着暖色调的温度,让家成为一处静谧且充满爱的归属。合理的结构改造与外扩设计,使空间更加通透大气,提升了居住的舒适性与功能性。
This case is a modern private residence immersed in sunshine and greenery, warm and poetic, incorporating the fourth generation residential concept, closely connecting people with nature, ecology and space.
The natural wood texture interweaves with warm tones of warmth, making home a peaceful and loving place to belong. Reasonable structural renovation and expansion design have made the space more transparent and atmospheric, enhancing the comfort and functionality of living.
空间布局:




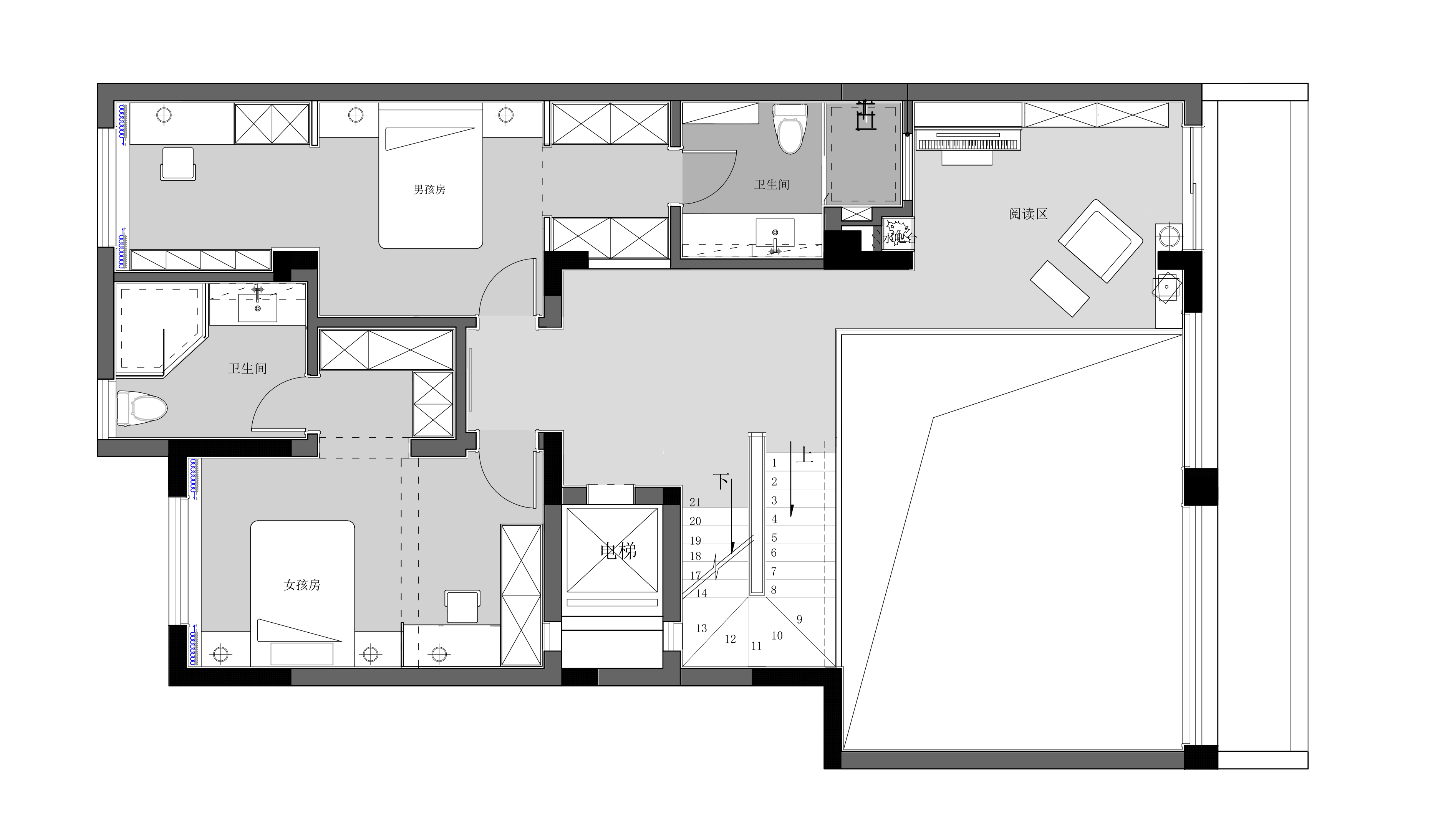
负一层:为孩子们打造一片自由天地,欢声笑语回荡在宽敞的儿童活动区,成长的每一刻都被温柔包裹,营造健康舒适的亲子互动空间。
Negative layer: Create a free world for children, with laughter and joy echoing in the spacious children's activity area. Every moment of growth is gently wrapped, creating a healthy and comfortable parent-child interaction space.

四季流转,绿意盎然,花香随风入室,阳光透过树影轻落,一步一景,皆是生活的诗篇。外扩区域增加了景观互动,让自然成为日常生活的一部分。
The four seasons flow, the greenery is lush, the fragrance of flowers enters the room with the wind, the sunlight falls gently through the tree shadows, step by step, they are all poems of life. Expanding the area has increased landscape interaction, making nature a part of daily life.


会客厅、餐厅与茶区交融,空间流动而开放,在温润的光影里,家人朋友围坐,谈笑间尽享时光的醇厚。外扩部分让整个空间更显通透,人与自然的交流更加紧密。
The living room, restaurant, and tea area blend together, with a flowing and open space. In the warm light and shadow, family and friends sit together, chatting and enjoying the richness of time.
The external expansion makes the entire space more transparent, and the communication between humans and nature is closer.



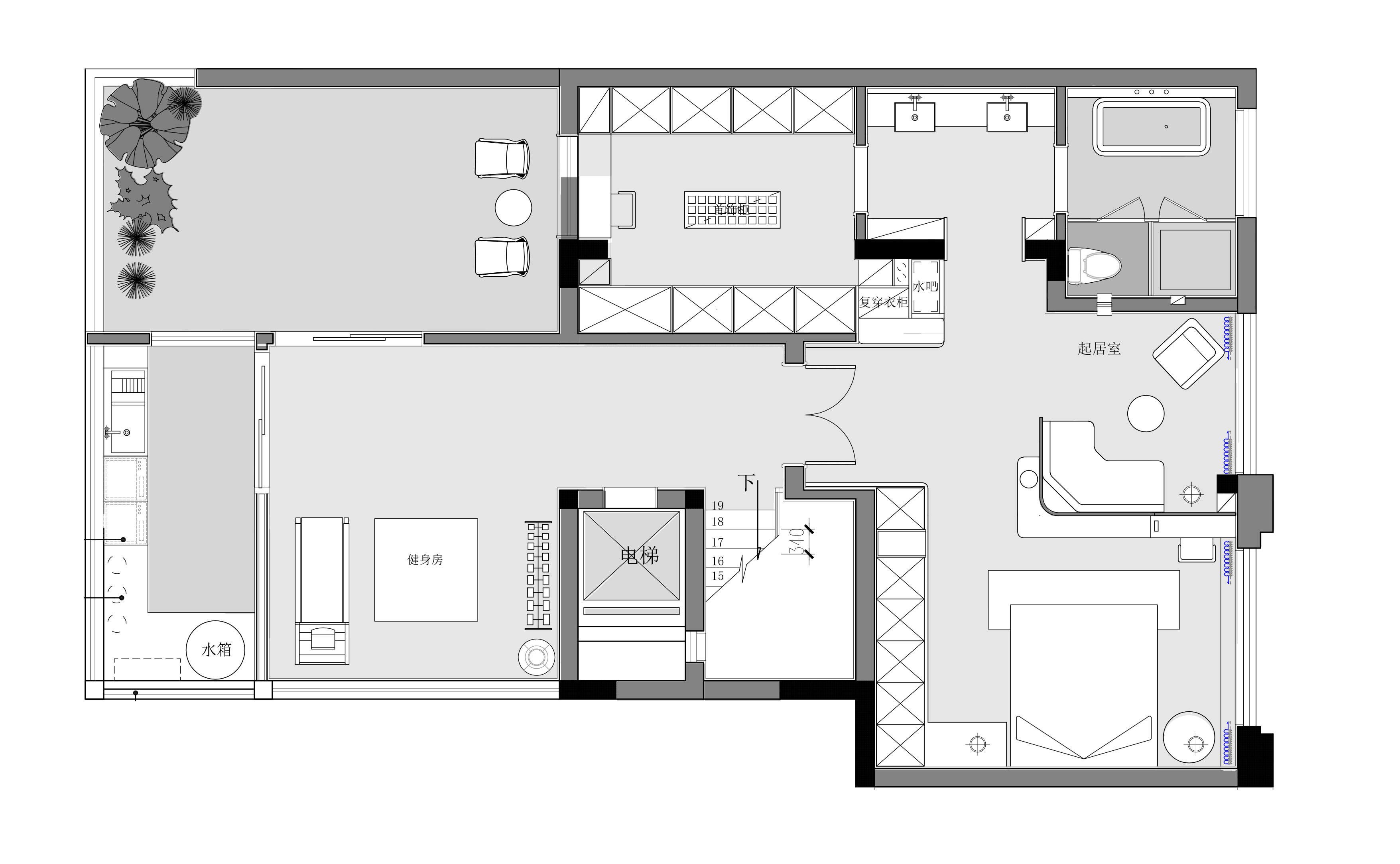
主卧套房自成一隅,私密而宁静。原木与暖色交错,勾勒出柔和的休憩氛围,夜晚在温暖的怀抱中安然入梦。
The master bedroom suite is a corner of its own, private and peaceful. The interweaving of natural wood and warm colors creates a soft and relaxing atmosphere, allowing one to peacefully sleep in the warm embrace at night.



家,不止是容身之所,更是心灵的归途。在自然与设计的交汇中,让生活回归本真,温暖且诗意栖居。
Home is not only a place to live, but also the path for the soul to return.
At the intersection of nature and design, let life return to its essence, warm and poetic dwelling.
